Outlet
Termo
Hidro
Climatizare
Sanitare
Gresie Faianță
Aspiratoare centralizate
Electrice
Piese de schimb
- Pompe de caldura
- Centrale termice murale și Cazane
-
Minicentrale termice simple pe gaz
- Minicentrale incalzire si apa calda instantanee
- Minicentrale incalzire si apa calda cu boiler incorporat
- Minicentrale incalzire si apa calda cu boiler extern
-
Cazane pe combustibil gazos
- Cazane pe combustibil gazos
- Centrale termice pavimentale
-
Minicentrale termice in condensatie pe gaz
- Minicentrale in condensatie incalzire si apa calda instantanee
- Minicentrale in condensatie de pardoseala pe gaz
- Minicentrale in condensatie incalzire si apa calda cu boiler extern
- Minicentrale incalzire si apa calda cu boiler incorporat
-
Centrale electrice
- Centrale electrice
-
Accesorii centrale termice
- Accesorii evacuare centrale (cosuri de fum)
- Accesorii sporire confort
- Butelie de egalizare
- Accesorii siguranta centrale
-
Cazane pe combustibil solid
- Cazane din fonta pe lemne si carbuni
- Cazane pe gazeificare
- Cazane pe peleti
- Cazane din otel pe lemne si carbuni
- Sobe
-
Accesorii cazane pe combustibil solid
- Surse alimentare neintreruptibile
- Accesorii cazane
- Agent termic
- Ventiloconvectoare (Fancoil unit, FCU)
- Colectoare solare presurizate
- Solutii alternative de incalzire
-
Incalzire convectiva cu apa calda
- Aeroterme
- Accesorii aeroterme
-
Incalzire convectiva gaz
- Generatoare aer cald
- Accesorii generatoare de aer cald
- Radiatoare si convectoare
-
Radiatoare din fonta
- Radiatoare din fonta
- Accesorii radiatoare din fonta
-
Radiatoare de baie si decorative
- Din aluminiu
- Din inox
- Accesorii radiatoare de baie si decorative
- Din otel
-
Radiatoare din otel
- Tip panou
- Tip panou verticale
- Accesorii radiatoare din otel
-
Radiatoare din aluminiu
- Clasice
- Inalte
- Accesorii radiatoate aluminiu
- Bimetalice
- Boilere si Preparatoare ACM
-
Acumulatoare
- Acumulatoare de apa
-
Boilere cu preparare directa
- Boilere electrice
-
Accesorii
- Accesorii boilere
- Accesorii preparatoare ACM
- Automatizari
- Arzatoare
- Pompe
- Vase de expansiune
-
Vase de hidrofor
- Vase de hidrofor din otel orizontale
- Vase de hidrofor din otel verticale
-
Sisteme de incalzire
- Vas expansiune oval pentru incalzire
- Vase expansiune cilindrice pentru incalzire
-
Sisteme multifunctionale
- Vase expansiune universale
-
Sisteme pentru apa potabila
- Vase de expansiune apa potabila
-
Sisteme solare
- Vase expansiune pentru instalatii solare
-
Accesorii vase de expansiune
- Accesorii vase de expansiune
- Teava si fitinguri din plastic
-
Tevi si fitinguri PPR alba
- Coturi PPR alba
- Curbe da ocolire PPR alb
- Teava PPR alb
- Mufe PPR alb
- Racorduri cu filet PPR alb
- Robineti PPR alb
- Teuri PPR alb
- Dopuri PPR alb
- Sisteme prindere PPR alb
-
Tevi si fitinguri PPR gri
- Teava PPR gri
- Coturi PPR gri
- Cruci PPR gri
- Curbe de ocolire PPR gri
- Dopuri PPR gri
- Mufe PPR gri
- Racorduri cu filet PPR gri
- Robineti PPR gri
- Teuri PPR gri
- Sisteme prindere PPR gri
-
Tevi si fitinguri Polietilena
- Tevi pentru apa polietilena
- Coturi polietilena
- Mansoane polietilena
- Racorduri polietilena
- Teuri polietilena
- Treceri polietilena-otel
- Dopuri polietilena
- Coliere pentru teava polietilena
-
Tevi si fitinguri Pex
- Teava Pex pentru incalzire/apa potabila
- Coturi pex
- Racorduri pex
- Accesorii pex
- Scule/dispozitive imbinare tevi multistrat si PPR
- Scule pentru instalatori
- Teava si fitinguri din metal
-
Sisteme de otel
- Teava inox/teava galvanizata
-
Sisteme de fonta
- Coturi filetate din fonta zincata
- Teuri filetate din fonta zincata
- Racorduri filetate din fonta zincata
- Mufe filetate din fonta zincata
- Reductii filetate din fonta zincata
- Niple filetate din fonta zincata
- Dopuri filetate din fonta zincata
- Cruci filatate din fonta zincata
-
Racorduri alama
- Coturi din alama nichelata
- Racorduri olandeze din alama nichelata
- Reductii din alama nichelata
- Teuri din alama nichelata
- Mufe din alama nichelata
- Niple din alama nichelata
- Cruci din alama nichelata
- Prelungitoare din alama nichelata
- Dopuri din alama nichelata
- Coturi din alama
- Mufe din alama
- Niple din alama
- Reductii din alama
- Teuri din alama
- Prelungitoare din alama
- Racorduri din alama
- Dopuri din alama
- Filtre impuritati
- Supape de sens din alama
-
Sisteme de cupru
- Racorduri imbinare cupru prin sudura
- Reductii imbinare cupru prin sudura
- Teuri imbinare cupru prin sudura
- Racorduri cu hollender sudura cupru
- Mufe imbinare cupru prin sudura
- Curbe imbinare cupru prin sudura
- Dopuri imbinare cupru prin sudura
- Piulite cu hollender sudura cupru
- Accesorii sudura cupru
- Mansoane protectie imbinari cupru
- Teava cupru pentru incalzire si aer conditionat
- Coturi imbinare cupru prin sudura
- Sisteme de fontă GEBO
-
Fitinguri filetate din fontă maleabilă GEBO
- Coturi filetate din fontă maleabilă
- Teuri filetate din fontă maleabilă
- Reducţii filetate din fontă maleabilă
- Cruci filetate din fontă maleabilă
- Niple filetate din fontă maleabilă
- Mufe filetate din fontă maleabilă
- Dopuri filetate din fontă maleabilă
- Racorduri filetate din fontă maleabilă
- Colectoare si dulapuri de distributie
- Robineti, racorduri, accesorii
-
Robineti si accesorii pentru radiatoare
- Robineti pentru radiator
- Dezaeratoare radiatoare
-
Robineti si racorduri pentru gaz
- Robineti pentru gaz
- Accesorii
-
Robineti si racorduri pentru apa
- Robineti de trecere
- Robineti speciali
- Robineti mari
- Racord flexibil
- Sisteme de canalizare
-
Sifoane si scurgeri
- Sifoane pentru lavoar
- Sifoane pentru cada-dus
- Tevi prelungitoare si conectori
- Furtune pentru sifoane
- Ventile, dopuri pentru sifoane
- Sifoane pentru pisuar
- Sifoane canalizare
- Sifoane pentru bideu
- Sifoane de pardoseala si terasa
- Coloane de scurgeri pentru cazi
- Racorduri pentru vase WC
- Filtre
-
Filtre pentru apa
- Filtre apa si cartuse
- Dozatoare
- Filtre anticalcar
- Accesorii
- Dedurizatoare
-
Dedurizatoare
- Dedurizatoare
- Echipamente de masurare
- Izolatie
-
Placi si tuburi pentru izolatii termice
- Tuburi izolatie
- Placi polistiren
- Coliere izolate
- Accesorii izolatie
- Sisteme de prindere
-
Sisteme de prindere si fixare
- Bride din otel zincat cu diblu
- Coliere pentru tevi
- Suruburi fixare obiecte termo/sanitare
-
Accesorii de montaj
- Seturi de fixare sanitare
- Accesorii de montaj
- Ancore si adezivi fixare
- Garnituri, o-ring-uri
-
Garnituri robineti, baterii, cazi
- Garnituri cauciuc robineti apa
-
Garnituri racorduri
- Garnituri racorduri antivibrante
- Gartinuri racord flexibil apa
- Garnituri racord flexibil gaz
-
Garnituri sisteme canalizare
- Garnituri teava, fitinguri PP
-
Garnituri sisteme de imbinare
- Garnituri flanse otel
-
Garnituri radiatoare
- Garnituri radiatoare aluminiu
- Garnituri radiatoare fonta
- Climatizare rezidentiala
- Climatizare industriala
-
Ventilatoare si centrale tratare aer
- Centrale tratare aer
-
Ventiloconvectoare de tubulatura
- ventiloconvectoare de tubulatura
- Tubulatura PVC pentru ventilatie
- Tuburi/racorduri flexibile din aluminiu
-
Grile si componente ventilatie
- Grile aspiratie
- Difuzoare/clapete
- Accesorii grile si componente ventilatie
- Chillere
- Obiecte sanitare
-
Obiecte sanitare
- Bideu
- Pisoar
- Lavoar
- Vase WC
- Sisteme de instalatii
- Accesorii obiecte sanitare
- Miscelatoare
- Chiuvete pentru bucatarie
- Dusuri, seturi de dus
-
Seturi de dus
- Seturi de dus
- Accesorii pentru baie
- Mobilier de baie
-
Mobilier de baie
- Dulapior de baie
- Oglinzi de baie
- Seturi mobilier baie
- Coloane, semicoloane
- Aplici
- Cabine de dus
- Cazi de baie
-
Cazi de baie
- Cazi de baie simple
- Cazi de baie cu hidromasaj
Meteo in Moldova
Curs valutar
![]() |
1 MDL | ||
![]() |
1 EUR | 20.28 | |
![]() |
1 USD | 17.62 | |
![]() |
1 RON | 3.98 | |
![]() |
1 RUB | 0.22 | |
![]() |
1 UAH | 0.40 |
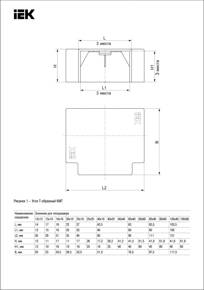
UNGHI-T KMT 60x40 ЭЛЕКОР
23.84 Lei
Pentru plata in rate, va rugam, sa va adresati consultantilor nostri.
Adauga in cos
La comanda
Cod: 20IK6069
Unghiul este în formă de T ELECOR. Este proiectat pentru proiectarea estetică a punctului de conectare în formă de T (ramură) a canalelor de cablu. Compatibil cu conductele de cablu din seriile ELECOR și ECOLINE. Material: polistiren. Culoare: alb. AVANTAJE Designul este conceput pentru a se potrivi exact cu conductele de cablu IEK. Potrivire confortabilă, design ergonomic, potrivirea completă a culorilor conductei de cablu.
Proiectul tau

















